戶型與價格:多元選擇・性價比之選

靈活空間・景觀優先,彈性門檻・潛力可期

戶型規劃

維港・雙鑽提供開放式至四房戶型,實用面積244-1770平方英尺,空間方正利用率高。大陽台落地玻璃最大化海景,頂層特色單位配平台天臺。啟德34校網低總價單位,適合首次置業及投資需求。

2幢大廈702個單位,滿足不同家庭需求。70%單位享無遮擋維港海景,景觀優先設計。維港・雙鑽小戶型首選,開放式單位516.3萬港幣起,頂層4房單位成交價7080萬港幣,性價比優越。

維港雙鑽 1房戶型圖則 約300平方呎 售價516.3萬起

1房戶型

面積:約300平方呎 房間:1房1廳
售價:516.3萬起
維港雙鑽 2房戶型圖則 約440-493平方呎 售價800萬起

2房戶型

面積:約440-493平方呎 房間:2房1廳
售價:800萬起
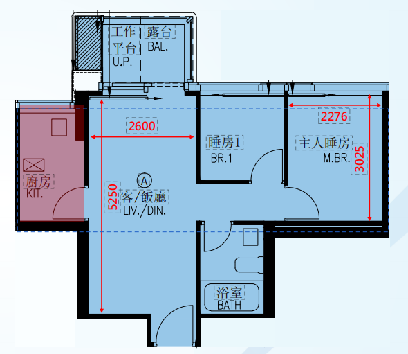
維港雙鑽 3房戶型圖則 約593-705平方呎 售價1200萬起

3房戶型

面積:約593-705平方呎 房間:3房2廳
售價:1200萬起

價格概覽

普通單位

呎價:17,508-28,859港元
開放式:516.3萬起
三房:2034.5萬起

特色單位

頂層4房:1770平方英尺
成交價:7080萬
呎價:40,000港元

投資回報

租金回報率:3.5%
月租:2萬起
租金抵供:能力優秀